Infrastruttura

M5 a Monza: ecco il cronoprogramma e come saranno le stazioni

A metà marzo attesi i decreti ministeriali per sbloccare i fondi aggiuntivi. Da gennaio 2027 via ai cantieri, attivazione prevista a dicembre 2033. Presentate a San Rocco le planimetrie delle fermate monzesi e il piano parcheggi

M5 a Monza: ecco il cronoprogramma e come saranno le  stazioni

Dovrebbero arrivare a metà marzo i decreti ministeriali che daranno attuazione concreta ai finanziamenti aggiuntivi per coprire l’allungamento della Linea M5 fino a Monza. È il passaggio formale che consentirà di avviare la gara d’appalto, da chiudere entro la fine del 2026. Da gennaio 2027 partiranno i lavori, con conclusione prevista a marzo 2033. Dopo collaudi e pre-esercizio, la nuova tratta dovrebbe essere attivata a dicembre 2033.

Il cronoprogramma è stato illustrato durante la serata pubblica organizzata a San Rocco, alla presenza di Salvatore Barbara, a capo della Direzione Infrastrutture del Comune di Milano, insieme alle ingegnere Maria Giovanna Limongelli e Francesca Galli di MM.

Un’opera da 1,9 miliardi

Il costo complessivo dell’intervento è salito da 1,3 a 1,9 miliardi di euro. Una cifra importante per un’infrastruttura che, è stato sottolineato, non collegherà solo Monza a Milano ma sarà soprattutto al servizio della città, facilitando gli spostamenti interni dei monzesi.

Proprio per questo non tutte le fermate saranno dotate di parcheggi di interscambio, per evitare di attrarre ulteriore traffico dall’hinterland e dalla Brianza.

«La M5 non rappresenta solo una novità trasportistica, ma anche un’occasione di riqualificazione urbana», ha spiegato l’assessora alla Viabilità Irene Zappalà.

Particolare attenzione sarà dedicata a via Borgazzi, destinata a diventare una delle principali porte di accesso alla città. Lungo 2,6 chilometri, dall’incrocio con via Bettola a quello con via Marsala, in accordo con Brianzacque saranno realizzati sistemi di drenaggio e fitodepurazione delle acque piovane, nuove piste ciclabili, pozzi per l’acqua potabile, depavimentazioni e aree verdi.

La nuova tratta aggiungerà 13 chilometri e 11 stazioni agli attuali 15 chilometri e 19 fermate della M5. La linea sarà quasi interamente sotterranea: lavoreranno due talpe meccaniche che partiranno dal centro del prolungamento, una verso Sesto e una verso Monza.

I disagi legati alle cantierizzazioni saranno inevitabili, anche se gran parte degli scavi avverrà in profondità. Se ne parlerà nel dettaglio con l’avvio dei lavori.

Le nuove stazioni a Monza

Viale Campania

Sarà collocata a nord del viale, poco lontano da PizzAut. In superficie sono previsti alcuni posti auto per utenti fragili, un’area kiss and ride e una piazza verde.

Via Marsala

Sorgerà all’incrocio con le vie Goldoni e Mauri. Resterà il semaforo: esclusa l’ipotesi della rotonda inizialmente prevista.

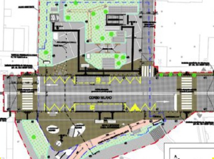
Monza Fs

La stazione sarà realizzata nell’area dell’attuale distributore Esso di corso Milano. Sopra è prevista una piazza con verde e panchine, il rialzo del tratto di corso Milano in asfalto stampato con attraversamenti pedonali e la possibilità di un futuro collegamento pedonale sotterraneo con la stazione ferroviaria, in coordinamento con Rfi. Riqualificato anche il camminamento verso l’Info Point.

Trento e Trieste

La fermata sarà sotto l’attuale parcheggio di piazza IV Novembre, con uscite verso piazza Trento e Trieste e verso l’Arengario di Monza. Prevista la riqualificazione delle pavimentazioni di piazza IV Novembre e piazza Carducci.

Parco e Ospedale

La stazione Parco sarà sotto il parcheggio di Porta Monza, con uscite verso viale Brianza e verso il Parco di Monza, nel rispetto degli orari di apertura.

All’ospedale, la fermata sorgerà sotto l’attuale posteggio di fronte al Ospedale San Gerardo, con due uscite verso le scuole e verso il nosocomio.

Capolinea Polo istituzionale

Il capolinea sarà sotto l’area compresa tra l’edificio della Provincia e l’attuale bosco dove è previsto uno studentato, progetto al centro di un acceso dibattito con le forze ambientaliste.

Il nodo parcheggi di interscambio

I parcheggi principali saranno al Polo istituzionale e al Parco, oltre ai 2.500 posti della stazione Cinisello-Monza all’incrocio tra M5 e M1 a Bettola.

Al Polo istituzionale sono già disponibili 1.000 posti al Bennet, a cui si aggiungeranno 400 posti interrati in una nuova struttura tra la Provincia e il centro commerciale. Al Parco il parcheggio di Porta Monza resterà sostanzialmente invariato.

Previsto anche un parcheggio interrato al San Gerardo, finanziato con risorse della Legge 9 – Piano Lombardia, come spiegato dal sindaco Paolo Pilotto.

Il deposito di Casignolo

Svelati i dettagli anche del futuro deposito di Casignolo. Particolare attenzione ovviamente ha suscitato, durante la serata, il deposito-officina di Casignolo, destinato a occupare un’area, ora agricola, di 18 ettari tra le vie Lago Ceresio e Cividale del Friuli. L’opera servirà al rimessaggio dei treni (ai 21 attualmente in dotazione alla Lilla se ne aggiungeranno altri 11, ma la capacità della rimessa sarà per 60 convogli), ospiterà l’officina, l’impianto per la pulizia dei treni, uffici, sala mensa, un posto di comando e controllo. Un’opera tanto necessaria per la linea quanto imponente, che i progettisti promettono di mascherare e di rendere ambientalmente sostenibile. «Saranno messi a dimora dodicimila alberi -ha detto Salvatore Barbara- per mascherare la struttura. Nel giro di una decina di anni, ad alberi cresciuti, sarà completamente schermata. Oltre a questo, un bacino di riserva idrica raccoglierà le acque, le sottoporrà a fitodepurazione (depurazione grazie a particolari piante acquatiche, ndr) per irrigare le piante stesse».

Salendo da Milano, il deposito sarà raggiunto dalla linea dopo aver superato la stazione Cinisello-Monza (che garantirà un interscambio con la stazione M1 di Bettola, nella zona dell’Auchan di Cinisello), essere salita in superficie per attraversare con un ponte la Tangenziale Nord A52, prima di tornare in sotterranea per raggiungere la stazione di viale Campania. Diciotto ettari sono un impatto non trascurabile, soprattutto a fronte del fatto che ora l’area è agricola. La forestazione perimetrale dovrebbe coprire la vista della struttura. La protezione acustica dovrebbe essere garantita da barriere verdi alte tre metri, un impianto fotovoltaico sul tetto della rimessa garantirà la sostenibilità energetica. Su gran parte degli edifici la copertura sarà a verde, contribuendo alla mitigazione ambientale. Secondo i progettisti, a opera finita, le superfici verdi, i tetti a verde e il bacino lacustre copriranno 10 ettari, lasciando gli altri 9 edificati.